ROMA SUR TOWER
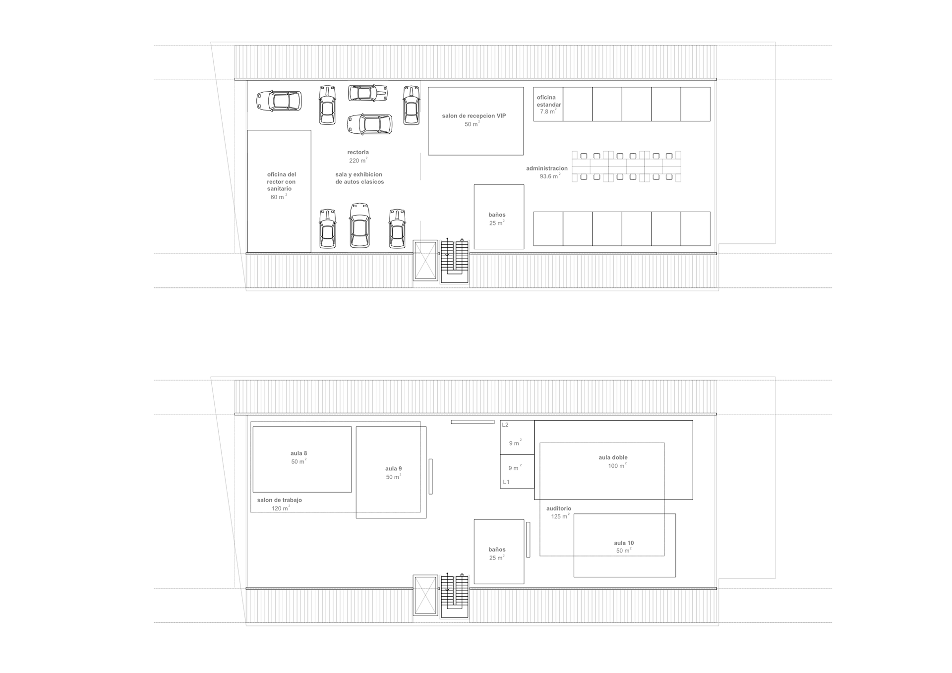
Experimenting with a confined vertical space in Mexico City. Speculating the best m2, parking spaces, regulated dimensions, and floor levels.
Experimenting with a confined vertical space in Mexico City. Speculating the best m2, parking spaces, regulated dimensions, and floor levels.